Rosenstrasse 12   8400 Winterthur
052 260 20 80    Bitte Javascript aktivieren!

Wettbewerb Chamanna da Boval

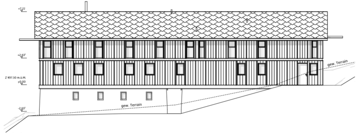
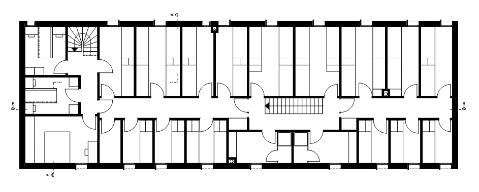
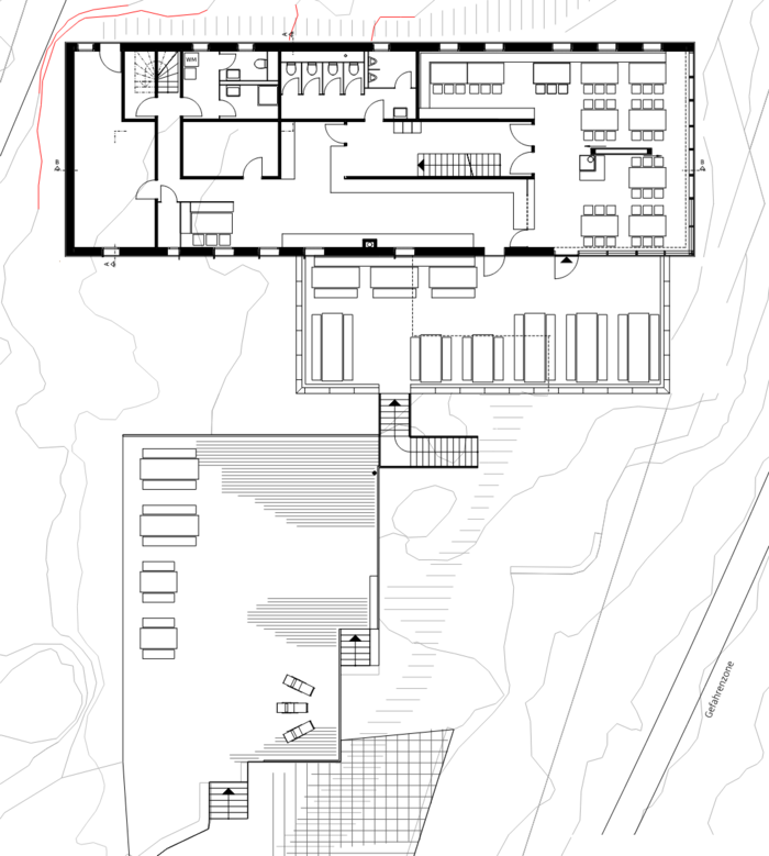
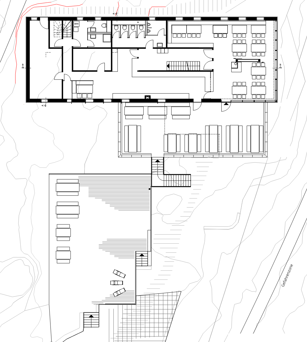
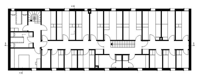
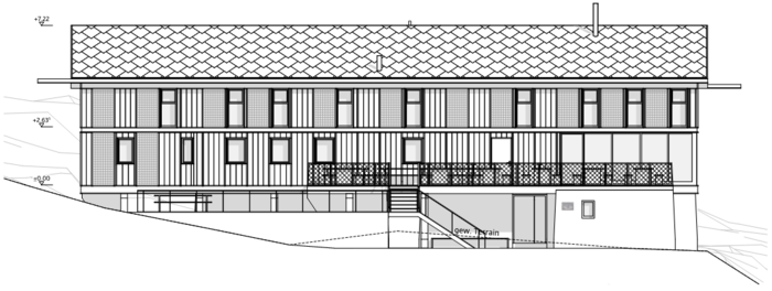
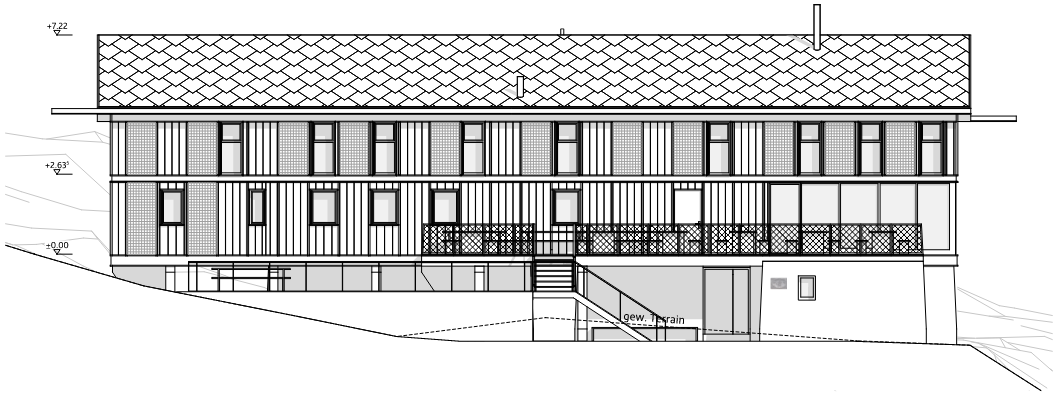
Die heutige Chamanna da Boval von 1918 liegt auf der Seitenmoräne oberhalb des Morteratschgletschers mit beeindruckendem Blick in die Hochgebirgslandschaft rund um Piz Bernina und Piz Palü. In der neuen Bovalhütte wird dieses Naturschauspiel auch von innen zum Erlebnis. Der eingeschossige Riegel mit Steildach ruht auf einem Sockel und positioniert den Aufenthaltsraum hoch über dem Wanderweg am linken Ufer des Gletschers; raumhohe Fenster öffnen den Blick. Die Form orientiert sich an der bestehenden Hütte in traditioneller Bauweise, um den extremen Witterungsbedingungen zu trotzen. Der Entwurf basiert auf einer klaren, funktionalen Organisation und einer langlebigen, ressourcenschonenden Bauweise. Das Untergeschoss des bestehenden Gebäudes wird weitergenutzt und dient als Lager- und Technikraum sowie als Teil der Terrasse. Ein massiver Sockel aus Recyclingbeton trägt den darüberliegenden vorfabrizierten Holzbau. Photovoltaik und ein effizienter Wärmespeicher ermöglichen eine nachhaltige, weitgehend autarke Energieversorgung.

Projektstand: Wettbewerb
Auftraggeber: SAC Sektion Bernina
Datenblatt: PDF